Découper des pages PDF
|
Commande |
Emplacement |
|
Éditer découpage |
Outils Menu contextuel |
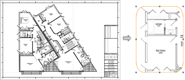
Les pages PDF que vous avez importées ou référencées peuvent être découpées afin que seule une partie de la page PDF soit visible.
Pour découper des pages PDF importées ou référencées :
Sélectionnez l’objet PDF dans le dessin.
Sélectionnez la commande ou double-cliquez sur l’objet PDF.
Le mode d’édition des objets s’ouvre. Si le PDF se trouve sur un plan 3D, la vue pivotera pour que le plan 3D soit parallèle au plan de l’écran.
Créez un objet 2D, comme un rectangle, un cercle ou une polyligne pour définir une surface, par exemple. Placez l’objet 2D afin que la partie souhaitée du PDF soit délimitée. Vous ne pouvez pas donner de remplissage à l’objet avec lequel vous découpez le PDF, mais vous pouvez régler le type de plume via la palette des Attributs quand vous vous trouvez dans le mode d’édition.
Cliquez sur Quitter page PDF découpée pour revenir au dessin.
Le PDF découpé est affiché. Dans la palette Info Objet, le statut du Découpage devient « Oui ».
Pour modifier, remplacer ou supprimer l’objet découpé, sélectionnez l’objet PDF et sélectionnez à nouveau la commande pour réactiver le mode d’édition.
Pour modifier la visibilité de l’objet de découpe, cochez l’option Afficher le découpage dans la palette Info Objet.
