Gestapelde schuine maatlijnen
|
Methode |
Gereedschap |
Gereedschappenset |
|
Gestapelde schuine maatlijnen vanuit het beginpunt
|
Schuine maatlijn
|
Aanduidingen |
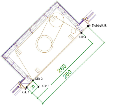
Selecteer de methode Gestapelde schuine maatlijnen vanuit het beginpunt om een reeks verbonden maatlijnen te plaatsen die alle vanuit een vast punt vertrekken.
Om een reeks gestapelde schuine maatlijnen te creëren:
Activeer het gereedschap en de methode. Selecteer vervolgens een Maatlijnstandaard en de Eenheden.
Klik om het beginpunt van de maatlijn te bepalen.
Klik om het einde te bepalen van het eerste segment.
Beweeg de aanwijzer om de exacte plaats van de maatlijn ten opzichte van het object te bepalen.
In een 3D-aanzicht bepalen de eerste twee klikken de X-as van het vlak waarop de maatlijn zal worden geplaatst. Dit vlak kan horizontaal of verticaal zijn ten opzichte van het ontwerplaagvlak of uitgelijnd op aangrenzende vlakken van het te bematen 3D-object.
Klik om de maatlijn in de tekening te plaatsen.
Beweeg de aanwijzer naar het volgende te bematen punt en bepaal de lengte en de richting.
Herhaal dit tot je alle te bematen punten hebt aangeklikt.
Dubbelklik om de kettingmaatlijn te beëindigen

Niet gevonden wat je zocht? Vraag het aan onze virtuele assistent Dex. ![]()

