Kadrowanie zaimportowanych plików PDF
|
Polecenie |
Lokalizacja |
|
Edytuj kadrowanie |
Modyfikacja Menu kontekstowe |
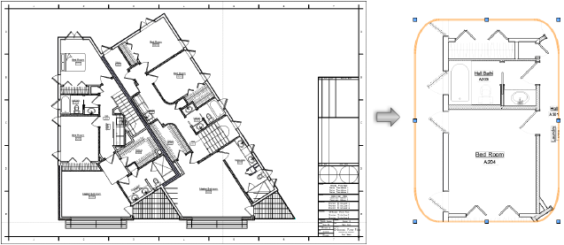
Zaimportowane lub skorelowane strony PDF można wykadrować, tak aby widoczna była tylko wybrana część danej strony.
Aby skadrować zaimportowaną lub skorelowaną stronę PDF:
Zaznacz obiekt PDF na rysunku.
Zaznacz polecenie lub kliknij dwukrotnie obiekt PDF.
Tryb edycji został aktywowany. Jeśli obiekt PDF znajduje się na płaszczyźnie 3D, widok obróci się tak, aby płaszczyzna 3D była równoległa do płaszczyzny ekranowej.
Narysuj zamknięty obiekt 2D (na przykład prostokąt, okrąg lub polilinię), aby wyznaczyć kształt kadrowania. Ustaw obiekt 2D w taki sposób, aby wyodrębniał wybraną część obiektu PDF. Domyślnie obiekt wykorzystany do kadrowania pliku PDF nie ma wypełnienia (opcja Brak), za to w trybie edycji można zmienić styl pióra (w palecie Atrybuty).
Kliknij przycisk Zamknij kadrowanie strony PDF, aby powrócić do projektu.
Wyświetlony zostanie skadrowany obiekt PDF. W palecie Info status w rubryce Kadrowanie zmieni się na Tak.
Aby edytować, przesuwać lub usunąć obiekt kadrujący, zaznacz obiekt PDF. Następnie zaznacz polecenie, aby ponownie przejść do trybu edycji.
Widoczność obiektu kadrującego można dostosować w palecie Info za pomocą opcji Pokaż kontur kadrowania.

Potrzebujesz więcej informacji? Poproś o pomoc naszego wirtualnego asystenta Dexa!