Contrôler la visibilité et l'apparence grâce aux phases
Vous pouvez contrôler la visibilité et l'apparence des objets dans une phase en utilisant des attributs dynamiques et une combinaison de préférences de document et de préférences définies pour chaque viewport sur planche de présentation individuel. Par exemple, vous pouvez utiliser ces options pour afficher uniquement les objets présents dans la phase active et appliquer une apparence différente pour indiquer d'un coup d'œil les objets qui sont créés ou supprimés dans la phase.
Attributs dynamiques et phases
Utilisez les attributs dynamiques pour contrôler la visibilité et les attributs des objets en fonction de leur état dans la phase active d'un calque de dessin ou dans la phase sélectionnée pour un viewport sur planche de présentation. En l'absence d’attributs dynamiques, il n'est pas possible de distinguer les changements apportés à chaque phase. Si les mêmes attributs dynamiques sont appliqués lorsque vous changez de phase active, l'apparence des objets dans le dessin change en fonction de leur état dans la phase active. Certains objets peuvent être affichés ou masqués, et les attributs d'autres objets changent en fonction de leur état. Vous pouvez utiliser des critères liés aux phases pour créer des attributs dynamiques personnalisés selon vos besoins.

Sans l'application d'attributs dynamiques, il est impossible de faire la distinction entre l'exemplaire original de cette fenêtre, à gauche, et l'exemplaire déplacé lors de la phase 2, à droite.
Appliquez des attributs dynamiques pour définir l'apparence des objets en fonction de leur état. Si plusieurs jeux d’attributs dynamiques sont appliqués, l'ordre dans lequel ils sont appliqués est important. À la fin de chaque jeu d’attributs dynamiques appliqué, un nombre entre parenthèses indique l'ordre des jeux d'attributs dynamiques. Dans la plupart des cas, il est préférable d'appliquer tous les attributs dynamiques de type « Masquer » avant les attributs dynamiques de type « Modifier les attributs ». Pour modifier l'ordre, désélectionnez les attributs dynamiques appliqués, puis resélectionnez-les dans l'ordre souhaité. Voir la section d'aide commençant par Visualiser le dessin par attributs dynamiques pour utiliser les attributs dynamiques dans un dessin.

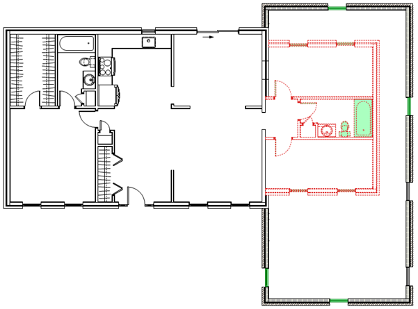
Ces attributs dynamiques définissent la manière dont les objets doivent apparaître en fonction de leur état dans la phase active. Dans cette vue, tous les objets dont l'état est « Démoli » ou « Retiré » dans la phase active sont affichés avec une ligne rouge en pointillés. Les objets dont l'état est « Retiré » ou « Déplacé » ont un remplissage vert. Les objets ayant l'état « Nouveau » utilisent leurs propres attributs. Les objets dont l'état est « Existant » ont un remplissage blanc.
Préférences du niveau de détail et phases
Dans un calque de dessin, les préférences de document permettent de définir un faible niveau de détail pour les objets basés sur des composants, ou les objets paramétriques et symboles, si leur État en phase active est Existant ou Retiré. Ces préférences remplacent les paramètres généraux du niveau de détail du fichier et vous permettent de donner aux objets existants ou supprimés une importance différente sur le calque de dessin. Vous pouvez, par exemple, montrer tous les objets existants et supprimés avec peu de détails, de sorte qu'ils fournissent un contexte pour les nouveaux objets tout en permettant à ces derniers de se démarquer. Vous pouvez également définir un faible niveau de détail lié aux phases pour les objets de chaque viewport ou style de viewport sur planche de présentation. Voir Préférences document : onglet « Affichage », Créer un viewport sur planche de présentation, ou la rubrique d'aide pour la création d'un type spécifique de viewport sur planche de présentation, tel qu’un viewport de coupe ou d’élévation intérieure.

Les préférences de faible niveau de détail pour les objets existants sont désélectionnées à gauche et sélectionnées à droite, où seuls les objets dont le État en phase active est « Nouveau » apparaissent avec un niveau de détail élevé.
