Concept: Fasering
Moeilijkheidsgraad: Gemiddeld
De faseringsfunctie van Vectorworks biedt een speciale workflow voor renovaties en andere gefaseerde projecten, waarmee je de fasen kunt specificeren waarin objecten worden gecreëerd, verwijderd, verplaatst, opgeslagen enzovoort tijdens een project. Kortom, fasering gaat niet over wat er wordt gecreëerd, maar wanneer het wordt gecreëerd. Elke fase vertegenwoordigt een tijdsblok en elk object in een tekening bestaat in relatie tot elke fase. Een bestand moet altijd een actieve fase hebben. De fase waarin een object wordt gemaakt, wanneer het wordt verwijderd en/of verplaatst en zijn status in de actieve fase zijn essentieel voor het beheren van een project.
Hoewel fasering momenteel beschikbaar is met elk Design Suite product, is het geoptimaliseerd voor gebruik in architectuur- en interieurprojecten. De faseringsgereedschappen en -commando’s moeten worden toegevoegd aan de Landschap en Spotlight werkomgevingen met behulp van het dialoogvenster Bewerk werkomgeving.
Fases beheren
De meeste basisrenovatieprojecten zullen minimaal twee fases hebben: één om de bestaande (as built) omstandigheden vóór de renovatie te documenteren en de andere om de sloop en nieuwbouw die tijdens de renovatie voltooid werd te documenteren. Complexere projecten kunnen meerdere fasen hebben. Je kunt fasen toevoegen, een bestaande fase samenvoegen met een aangrenzende fase en de naam en andere details van een fase bewerken, zodat de fasenamen, volgorde en structuur geschikt zijn voor elk project. Eenmaal vastgesteld en in gebruik met objecten die zijn toegevoegd aan de tekening, kan de volgorde van fasen niet worden gewijzigd en een fase kan alleen worden samengevoegd met een andere, maar niet worden verwijderd, omdat deze wijzigingen een onmogelijke volgorde van bewerkingen kunnen creëren voor objecten binnen een fase.
Elke wijziging aan een object wordt automatisch toegewezen aan de actieve fase. Wanneer je in een bestand werkt, is het essentieel dat je de juiste fase actief hebt staan wanneer je objecten toevoegt, verwijdert en verplaatst. De fasen worden beheerd en de actieve fase wordt geselecteerd en weergegeven op de weergavebalk (wanneer de groep Fasering op de weergavebalk is vastgepind), zodat deze altijd zichtbaar is.
Elk Vectorworks-bestand moet ten minste één fase hebben, zelfs als het project dat wordt gedocumenteerd geen fasering gebruikt, waardoor alles in wezen nieuwbouw is. Voor projecten zonder fasering kun je de faseringgroep uit de weergavebalk halen en doorgaan alsof deze niet bestaat.
Objecten beheren met fasering
Het is essentieel dat elk object de juiste faseringsgegevens heeft. Objecten in een bestand worden automatisch toegewezen aan de actieve fase wanneer ze worden gecreëerd, gesloopt, verwijderd of verplaatst, maar faseringsgegevens voor een geselecteerde invoeging van een object kunnen worden gewijzigd in het infopalet. Het Infopalet is de centrale hub voor het beheren van faseringsgegevens voor een object/instantie, maar er zijn andere gereedschappen, commando's en paletten die helpen bij het bijhouden en beheren van objectfasering, waaronder het Fasering-palet, het Ontbreek gereedschap en contextmenu-opdrachten om te navigeren naar gekoppelde, gefaseerde instanties van hetzelfde object.
Objectfasering kan alleen worden beheerd op ontwerplagen; sommige objecten, waaronder sommige Landschap- en Spotlight-specifieke parametrische objecten, objecten zoals de heliodon en sommige annotaties, kunnen niet worden gefaseerd.
Een enkel object kan in verschillende fasen op meerdere locaties terechtkomen, zoals een raam dat wordt verwijderd en opgeslagen wanneer een muur wordt gesloopt en vervolgens in een nieuwe muur wordt geplaatst. Om onderscheid te maken tussen deze verschillende toepassingen/locaties van hetzelfde werkelijke object, worden ze invoegingen genoemd; een enkel object kan meerdere invoegingen hebben, elk met zijn eigen faseringsgegevens.
Een invoeging van een object heeft een Status in actieve fase weergave op het Infopalet die de status weergeeft in relatie tot de huidige actieve fase. Een venster dat wordt toegevoegd in Fase 1 heeft bijvoorbeeld de status Nieuw in Fase 1. In Fase 2 is dat object niet langer nieuw, maar heeft het de status Bestaand. Als het object in Fase 2 wordt verwijderd, verandert de status in Verwijderd en als het in dezelfde fase wordt verplaatst, verandert de status in Verplaatst, wat altijd de laatste bewerking aangeeft die op dat object is uitgevoerd in relatie tot de actieve fase. In Fase 3 heeft het raam dat in Fase 2 werd verplaatst de status Bestaand, omdat wanneer Fase 3 begint, dat venster op die locatie al bestaat.
Het is essentieel om een enkel object te volgen over meerdere invoegingen en om de status van een invoeging aan te geven in relatie tot elke fase. Met de faseringsfunctie kun je bijhouden welke objecten worden verwijderd van hun oorspronkelijke locatie, mogelijk een tijdje worden opgeslagen en op een andere locatie binnen het project worden geplaatst. Je kunt navigeren van de ene invoeging van een object naar de vorige of volgende invoeging van hetzelfde object, om de verschillende locaties van het object in de tekening te zien en de volgorde waarin ze worden gebruikt. Elke invoeging kan afzonderlijk worden geselecteerd en de faseringsgegevens kunnen worden bekeken of gewijzigd in het Infopalet.
Hoewel je de faseringsgegevens voor elke invoeging afzonderlijk kunt bewerken, moet je voorzichtig zijn bij het bewerken van individuele invoegingen van objecten. Je kunt bijvoorbeeld de omlijsting of dorpel van een raamobject tussen instanties wijzigen, maar je mag geen wijzigingen aanbrengen die invloed hebben op de raameenheid zelf, zoals de grootte of de geometrie. Elk van de invoegingen is in wezen hetzelfde object.
Objecten op basis van componenten (zoals muren, platen, daken en verhardingen) worden behandeld als één object voor faseringsdoeleinden; individuele componenten kunnen geen andere fasestatus hebben dan het bovenliggende object. Als je slechts enkele componenten van een object moet afbreken, zoals het omzetten van een buitenmuur naar een binnenmuur tijdens een aanbouw, moet je extra objectstijlen maken met slechts enkele van de componenten en de wijziging beheren met behulp van die objecten.
De faseringsfunctie behoudt een logische volgorde van bewerkingen (een die kan worden voltooid met fysieke objecten tijdens het bouwen) en waarschuwt je als je een invoeging probeert te wijzigen op een manier die de faseringsgegevens voor een andere invoeging ongeldig maakt. Als je bijvoorbeeld een eerdere invoeging van een object dat in een latere fase wordt hergebruikt, probeert te slopen in plaats van te verwijderen, krijg je een waarschuwing met opties om het conflict op te lossen. Zo kunnen gehoste objecten (zoals ramen en deuren) ook niet worden aangemaakt voor of verwijderd na hun hostingobjecten (zoals muren).
Je kunt sommige objecten, zoals vuilnisbakken of mobiele toiletten, ook als tijdelijk aanduiden, om aan te geven dat ze weliswaar gedurende een of meerdere fases ter plaatse zijn, maar geen permanent onderdeel van het project vormen. Tijdelijke status kan ook gebruikt worden om aantekeningen van ontwerplagen, zoals maatlijnen of binnenzichtaanduidingen, alleen aanwezig te laten zijn in bepaalde fases. Objecten kunnen alleen worden verwijderd uit dezelfde fase waarin ze zijn gemaakt als ze eerst zijn gemarkeerd als Tijdelijk op het Infopalet.
Gefaseerde projecten visualiseren
Gebruik datavisualisaties om te bepalen welke invoegingen zichtbaar zijn en hoe ze er op een bepaald moment uitzien in de ontwerplaag of in een zichtvenster op een presentatielaag, op basis van hun status in de actieve fase. Zonder datavisualisaties zien alle objecten in een tekening er hetzelfde uit, ongeacht wanneer ze zijn gecreëerd, verwijderd of verplaatst; datavisualisaties zijn nodig om het tijdselement van fasering in het tekengebied weer te geven.

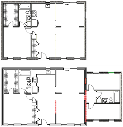
Datavisualisatie toont de veranderingen tussen de eerste en de tweede fase
Gebruik in een ontwerplaag de documentvoorkeuren om een laag detailleringsniveau in te stellen voor componentgebaseerde objecten en/of parametrische objecten en symbolen gebaseerd op hun status in de actieve fase. Je kunt ook een voorkeur voor fasering-gerelateerd laag detailleringsniveau instellen voor objecten op elk zichtvenster op een presentatielaag of elke zichtvensterstijl. Deze instellingen overschrijven de standaard documentvoorkeur voor detailleringniveaus op ontwerplagen en de instelling voor het detailleringniveau voor elk zichtvenster op een presentatielaag.
Rapporten en documentatie van gefaseerde projecten
Criteria en functies beschikbaar in het Criteria dialoogvenster, het Selecteer Functie dialoogvenster, rekenblad functies en meer maken het mogelijk om objectfaseringsgegevens te gebruiken met veelgebruikte rapport-, visualisatie- en aantekeninggereedschappen, waaronder rekenbladen, datavisualisaties, zichtvensters, gegevenslabels, grafische legendes, bewaarde zichten enzovoort.
Bij het exporteren van een Vectorworks bestand naar een ander formaat, exporteert het bestand in de meeste gevallen in een "wat je ziet is wat je krijgt" staat. Dat wil zeggen, als objecten worden geëxporteerd vanuit een ontwerplaag, exporteren ze in de staat waarin ze zich bevinden tijdens de actieve fase op het moment van export. Ook als een presentatielaag wordt geëxporteerd, worden objecten geëxporteerd in de fasestatus die wordt weergegeven in de zichtvensters. Exporteren naar DXF/DWG- en IFC-formaten is echter complexer; zie Exportinstellingen voor DXF/DWG- en DWF-bestanden en IFC-projecten exporteren.
Bij het importeren van ontwerplagen en geabonneerde IFC-projecten, kan je hun fases in het Vectorworks-bestand in kaart brengen om ervoor te zorgen dat de juiste wijzigingen in de juiste volgorde worden doorgevoerd. Zie Abonnementen weergegeven als laag toevoegen en bewerken en IFC-bestanden importeren.

Niet gevonden wat je zocht? Vraag het aan onze virtuele assistent Dex. ![]()