Zichtbaarheid en weergave regelen met fasering
Je kunt de zichtbaarheid en weergave van objecten in een fase regelen met behulp van datavisualisaties en een combinatie van documentvoorkeuren en voorkeuren die zijn ingesteld voor elk afzonderlijk zichtvenster op een presentatielaag. Je kunt deze besturingselementen bijvoorbeeld gebruiken om enkel de objecten te tonen die aanwezig zijn in de actieve fase en je kunt een ander uiterlijk toepassen om in één oogopslag aan te geven welke objecten in de fase worden gemaakt of verwijderd.
Datavisualisaties en fasering
Gebruik datavisualisaties om zowel de zichtbaarheid als de kenmerken van tekenobjecten te regelen op basis van hun status in de actieve fase van een ontwerplaag of in de geselecteerde fase voor een zichtvenster op een presentatielaag. Zonder datavisualisaties kun je niet onderscheiden welke wijzigingen in welke fase zijn aangebracht. Als dezelfde datavisualisatie wordt toegepast terwijl je de actieve fase wijzigt, verandert het uiterlijk van de objecten in de tekening naarmate hun status in de actieve fase verandert. Sommige objecten kunnen getoond of verborgen zijn en de kenmerken van andere objecten veranderen afhankelijk van hun status. Vectorworks biedt verschillende datavisualisaties met veelgebruikte instellingen voor fasering als onderdeel van de Architect en Interieur sjablonen, en je kunt fasering-gerelateerde criteria gebruiken om aangepaste datavisualisaties te maken als dat nodig is.

Zonder een datavisualisatie kun je geen onderscheid maken tussen de oorspronkelijke instantie van dit venster, links, en de instantie die in fase 2 is verplaatst, rechts.
Pas datavisualisaties toe om het uiterlijk van objecten in te stellen op basis van hun fasestatus. Als er meerdere datavisualisaties worden toegepast, is de volgorde waarin ze worden toegepast van belang; aan het einde van elke toegepaste datavisualisatie geeft een getal tussen haakjes de volgorde van de datavisualisaties aan. In de meeste gevallen is het het beste om alle datavisualisaties van het type Verberg toe te passen vóór de visualisaties van het type Kenmerken. Om de volgorde te wijzigen, deselecteer je de toegepaste datavisualisaties en selecteer je ze opnieuw in de gewenste volgorde. Zie de helpsectie die begint met De tekening weergeven met datavisualisatie om datavisualisatie in een tekening te gebruiken.

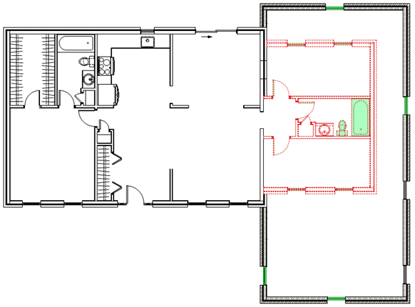
Deze datavisualisatie definieert hoe objecten moeten verschijnen volgens hun status in de actieve fase. In deze weergave worden alle objecten met de status Gesloopt of Verwijderd in de actieve fase weergegeven met een rode stippellijn. Objecten met de status Verwijderd of Verplaatst zijn groen gevuld. Objecten met de status Nieuw gebruiken hun eigen objectkenmerken. Objecten met de status Bestaand hebben een witte vulling.
Detaileringsniveau voorkeuren en fasering
Gebruik in een ontwerplaag de documentvoorkeuren om een laag detailleringsniveau in te stellen voor componentgebaseerde objecten en/of parametrische objecten en symbolen als hun Status in actieve fase Bestaand of Verwijderd is. Deze voorkeuren overschrijven de algemene detailleringsniveau-instellingen van het bestand en stellen je in staat om bestaande of verwijderde objecten een andere nadruk te geven in de ontwerplaag. Je kunt bijvoorbeeld alle bestaande en verwijderde objecten weinig gedetailleerd weergeven, zodat ze context bieden voor nieuwe objecten terwijl de nieuwe objecten opvallen. Je kunt deze fase-gebaseerde overschrijvingen in laag detailleringsniveau ook instellen voor objecten op elk zichtvenster op een presentatielaag of elke zichtvensterstijl. Zie Documentvoorkeuren: tabblad Weergave, Zichtvensters op presentatielagen creëren, of het helponderwerp voor het maken van een specifiek soort presentatielaag zichtvenster, zoals doorsnede of binnenzichtvenster.

De voorkeuren voor weinig details voor bestaande objecten zijn links gedeselecteerd en rechts geselecteerd, waarbij alleen objecten met een Status in actieve fase van Nieuw met hoog detailleringsniveau worden weergegeven.

Niet gevonden wat je zocht? Vraag het aan onze virtuele assistent Dex. ![]()