Een verticaal snedevenster creëren
|
Commando |
Pad |
|
Creëer snedevenster |
Weergave Contextmenu |
Verticale snedevensters maken een doorsnede van een bepaald model en geven je de mogelijkheid om deze op maat aan te passen (zie Snedevensters creëren).
Om een verticaal snedevenster te creëren:
Tref de volgende voorbereidingen:
Om een doorsnede te maken van de actieve ontwerplaag, stel je de weergave van de ontwerplaag in op 2D/Plan. Selecteer hiervoor Weergave > Standaard aanzichten > 2D/Plan.
Om een doorsnede te creëren van een bestaand zichtvenster, selecteer je een zichtvenster (geen snedevenster) in Boven-, Onder-, Links, Rechts, Voor- of Achteraanzicht, of activeer je de bewerkmodus voor de aantekeningen van een verticaal zichtvenster (geen snedevenster) of horizontaal snedevenster.
Om een doorsnede te maken van een bestaande modelbegrenzing, gebruik je het gereedschap Selectie om de verticale zijde van de modelbegrenzing aan te duiden waar de doorsnede zal beginnen. (Zie Een model bekijken met modelbegrenzing.)
Volg een van onderstaande werkwijzen:
Selecteer het commando.
Creëer een snijlijn met het gereedschap Aanduiding snede/zicht en selecteer dan het commando of klik op de knop Creëer snedevenster in het Infopalet. (Zie Aligning and distributing objects.) Ga verder naar stap 4.
Dupliceer een bestaande snijlijn van een ander zichtvenster. De kopie neemt alle instellingen en kenmerken van de originele snijlijn over, maar zal niet gekoppeld zijn aan het zichtvenster. Plaats de lijn en selecteer vervolgens het commando of klik op de knop Creëer snedevenster in het Infopalet. Ga verder naar stap 4.
Selecteer een modelbegrenzing en klik met rechts op het vlak dat je wilt gebruiken als snijvlak. Selecteer het commando uit het contextmenu. De snede/zichtaanduiding wordt automatisch gecreëerd; ga verder naar stap 4.
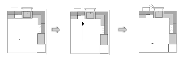
Als je geen bestaande snijlijn/zichtaanduiding of modelbegrenzing gebruikt om het snijvlak te creëren, teken dan zelf de snijlijn op de ontwerplaag of het zichtvenster.
Klik in de tekening en versleep de muis om de snijlijn te tekenen. Klik nogmaals om het eindpunt te bepalen en klik een derde keer om aan te geven naar welke kant je het snedevenster wilt oriënteren (aangeduid door een zwarte pijl). Dubbelklik om de snijlijn te voltooien.
Om een gebroken snijlijn te tekenen, klik je in de tekening en creëer je het eerste segment van de lijn. Geef aan naar welke kan je het snedevenster wilt oriënteren (dit deel van de tekening wordt in het snedevenster getoond). Klik-en-sleep om daarna nog extra lijnsegmenten te tekenen; gebroken snijlijnen lopen steeds evenwijdig of staan loodrecht op elkaar (hoek van 90°). Dubbelklik om de gebroken snijlijn te voltooien.
Het dialoogvenster ‘Snedevenster’ wordt geopend. Welke parameters hierin beschikbaar zijn, hangt af van het soort laag (ontwerp- of presentatielaag) waarop je het zichtvenster plaatst. De Parameter instellingen Volgens invoeging kan je nadien nog aanpassen via het Infopalet of het Instellingenvenster; om het Instellingenvenster te openen, klik je met de rechtermuisknop op het zichtvenster en selecteer je de optie Instellingen in het contextmenu.
Een snedevenster op een ontwerplaag neemt de schaalfactor over van deze laag. Ook de rendermethode van de huidige laag wordt door het snedevenster overgenomen.
Klik om de parameters te tonen/te verbergen.Klik om de parameters te tonen/te verbergen.
|
Veld |
Omschrijving |
|
Naam |
Dubbelklik in de Hulpbronnenkiezer op de hulpbron die je wilt gebruiken uit of klik zonder stijl. Als een object met stijl geconverteerd wordt naar een object zonder stijl, worden de huidige waarden behouden, maar je hebt de mogelijkheid om alle parameters ingesteld op Volgens invoeging te bewerken. |
|
Volgens stijl/invoeging |
Een icoon bij elke parameter geeft aan of de parameter in kwestie is ingesteld Volgens stijl (en een vaste waard krijgt) of Volgens invoeging (en bewerkbaar is in het dialoogvenster). Een objectstijl kan bestaan uit een combinatie van deze instellingen, zodat consistentie en flexibiliteit in evenwicht zijn. Bepaalde parameters moeten per invoeging worden ingesteld en zijn niet onderhevig aan deze instellingen. Welke instelling een parameter heeft (Volgens stijl/invoeging) wordt bepaald door de stijl en kan niet worden aangepast in het instellingenvenster.
Zie Zichtvensterstijlen creëren en bewerken om de objectstijl te bewerken. Merk op: door een objectstijl te wijzigen zullen alle parametrische objecten in de tekening die deze stijl gebruiken, aangepast worden. |
|
Algemeen |
|
|
Gebruik nr. presentatietekening/nr. presentatielaag als naam (enkel voor presentatielaag) |
Vink deze optie aan om automatisch een naam te geven aan het zichtvenster. Deze naam bestaat uit het nummer van de presentatietekening en het nummer van de presentatielaag. Vink deze optie uit om het zichtvenster een naam op maat te geven. |
|
Naam zichtvenster |
Wanneer je niet voor een automatische naamgeving kiest (optie Gebruik nr. presentatietekening/nr. presentatielaag als naam), dien je een unieke naam te geven aan het zichtvenster. |
|
Laag |
Selecteer de laag waarop het venster zal worden gecreëerd of selecteer Nieuwe [presentatie- of ontwerp-] laag om een laag aan te maken. Als er geen presentatielagen aanwezig zijn en je maakt nu geen nieuwe aan, dan zal Vectorworks je nadat je op OK hebt geklikt, vragen een presentatielaag aan te maken. |
|
Gebruik titel tekening: (enkel voor presentatielaag) |
Creëert een tekenlabel in de annotatieruimte van het zichtvenster; selecteer de stijl in de Hulpbronnenkiezer |
|
Nummer snedevenster (enkel voor presentatielaag) |
Vectorworks stelt standaard het volgende nummer voor dat beschikbaar is op de geselecteerde presentatielaag. Dit nummer wordt weergegeven op de snede/zichtaanduiding, alsook op alle objecten in de aantekeningen van het zichtvenster of gelinkt aan het zichtvenster. Het nummer moet uniek zijn op deze presentatielaag. |
|
Titel presentatietekening (enkel voor presentatielaag) |
Geef hier een beschrijvende titel voor het zichtvenster op; de lengte is beperkt tot 63 karakters. Deze titel wordt weergegeven bij elke aantekening die je aan het zichtvenster toevoegt. Als Automatische gegevenskoppeling geselecteerd is bij de documentvoorkeuren, wordt elke verandering in dit veld automatisch doorgevoerd in het veld van de referentieaanduiding en omgekeerd. |
|
Lagen |
Bepaal welke ontwerplagen zichtbaar zullen zijn in het zichtvenster. (zie Zichtbaarheidskolommen) Bij het bewerken van zichtvenstereigenschappen of het maken/bewerken van een zichtvensterstijl, kunnen sommige laageigenschappen in het zichtvenster worden gewijzigd; zie De zichtbaarheid van lagen in zichtvensters wijzigen. |
|
Selecteer de klasse waarvan je de grafische kenmerken wenst te gebruiken. |
Bepaal welke klassen zichtbaar zullen zijn in het zichtvenster. (zie Zichtbaarheidskolommen) Klik op deze knop om te bepalen welke klassen zichtbaar zullen zijn in het zichtvenster. Het is ook mogelijk om bepaalde klasse-instellingen voor het zichtvenster te wijzigen, zoals de instellingen voor aantekeningen of bijsnijdobjecten. Je kan de zichtbaarheidsinstellingen voor de klassen van een geselecteerd zichtvenster overschrijven; zie De zichtbaarheid van klassen in zichtvensters wijzigen. |
|
Fasering |
Alleen beschikbaar als er meer dan één fase in een bestand is |
|
Fase |
Selecteer de fase om weer te geven in het zichtvenster. De geselecteerde fase wordt de actieve fase voor het zichtvenster. |
|
Toon als laag detailleringsniveau |
Geeft, afhankelijk van de geselecteerde opties, componentgebaseerde objecten (zoals muren, platen, daken en verhardingen) en/of symbolen en parametrische objecten met een actieve fasestatus van Bestaand of Verwijderd/Gesloopt weer in laag detailleringsniveau, ongeacht de huidige instelling van het detailleringsniveau van het zichtvenster. |
|
Datavisualisatie |
Past een gegevensvisualisatie toe op het zichtvenster om objecten te verbergen of hun kenmerken te wijzigen op basis van hun gegevens; zie De tekening weergeven met datavisualisatie |
|
Creëer legende voor datavisualisatie |
Voegt automatisch een legende toe voor datavisualisatie wanneer een datavisualisatie wordt toegepast op het zichtvenster |
|
Verschaal (enkel voor presentatielaag) |
Bepaal de schaal van het detailzichtvenster ten opzicht van de pagina. Selecteer een schaal of kies Op maat en voer een aangepaste waarde in het veld Schaal op maat 1 in. |
|
Detailleringsgraad |
Selecteer de detailleringsgraad voor symbolen en parametrische objecten in het zichtvenster (zie Detailleringsgraden instellen voor 2D- en 3D-componenten van symbooldefinities en parametrische objecten. Muur-, plaat- en dakcomponenten worden weergegeven voor de instellingen Normaal en Hoog. |
|
Toon ruimtelijke 2D-objecten |
Vink deze optie aan om 3D-objecten zonder z-hoogte weer te geven in het snedevenster. Zichtbare ruimtelijke 2D-objecten worden doorgesneden als ze zich op de snijlijn bevinden. |
|
Toon 2D-componenten |
Vink deze optie aan om de 2D-componenten (indien beschikbaar) weer te geven van alle symbolen en parametrische objecten die loodrecht op het aanzicht liggen; zie Concept: 2D-componenten voor symbooldefinities en parametrische objecten. Objecten die geen 2D-weergave voor het gekozen aanzicht hebben, worden weergegeven in 3D. Voor zichtvensters op ontwerplagen, wanneer 2D-geprojecteerd weergeven is geselecteerd, is het gedrag hetzelfde als voor presentatielagen. Als de optie 2D-geprojecteerd weergeven is uitgevinkt, worden 2D-componenten in het zichtvenster alleen weergegeven binnen symboolsneden. Dit is alleen van toepassing op zichtvensters die gerenderd zijn door middel van ‘Achterliggende lijnen verbergen’ en ingesteld zijn in een 3D-aanzicht en orthogonale projectie. |
|
2D-geprojecteerd weergeven (enkel voor ontwerplaag) |
Indien aangevinkt, worden zichtvensters altijd weergegeven als een 2D-geprojecteerd snedevenster (vergelijkbaar met een snedevenster op een presentatielaag). Vink deze optie uit om het zichtvenster met het gekozen aanzicht voor de ontwerplaag weer te geven. |
|
Weergave |
|
|
Toon delen achter snijvlak |
Vink deze optie aan om ook de objecten weer te geven die achter het snijvlak gelegen zijn; zichtbare ruimtelijke objecten worden doorgesneden indien ze op de snijlijn liggen. |
|
Rendering vlakken/ribben |
‘Rendering vlakken’ bepaalt de rendermethode voor het zichtvenster. Als je een samengesteld, geschetst effect wilt bekomen door een extra laag lijnen bovenop het zichtvenster toe te voegen, selecteer dan ook een optionele rendermethode voor de ribben (Draadstructuur, Schetsstijl, Achterliggende lijnen verbergen en Achterliggende lijnen tonen zijn de enige rendermethodes beschikbaar voor de rendering van de ribben). Voor sommige methodes verschijnt de knop Instellingen zodat je de renderinstellingen kan aanpassen. Als er een renderstijl is geselecteerd voor de achtergrondrendermethode, bepaalt deze de instellingen voor de achtergrondrender; zie Renderstijlen. Voor snedevensters op ontwerplagen wordt de rendering van de vlakken bepaald door de instellingen van de ontwerplaag; Rendering ribben is in dat geval alleen beschikbaar wanneer de optie 2D-geprojecteerd weergeven is aangevinkt. |
|
Instellingen Rendering vlakken/ribben |
Klik op de knop om de instellingen van de rendermethode aan te passen (enkel beschikbaar voor bepaalde rendermethodes). De rendermethodes Shaded en Achterliggende lijnen verbergen bieden extra diepte weergave instellingen wanneer ze worden geopend vanuit het Infopalet van een geselecteerd zichtvenster. Zie onderstaande links voor meer informatie hierover: Instellingen Shaded: Shaded - instellingen en Diepte weergeven in een zichtvenster Instellingen Renderworks op maat: Renderworks op maat - instellingen Instellingen Renderworks artistiek: Renderworks artistiek - instellingen Instellingen Achterliggende lijnen tonen/verbergen en Polygoon beschaduwd - finaal: Lijnrendering - instellingen en Diepte weergeven in een zichtvenster Schetsstijl: Een schetsstijl toekennen aan een zichtvenster |
|
Toon 2D-vullingen (enkel voor presentatielaag) |
Vink deze optie aan om voor de achtergrondrendermethodes ‘Achterliggende lijnen verbergen’ en Achterliggende lijnen tonen’ de 2D-vulling van zichtbare vlakke objecten achter het snijvlak weer te geven in de tekening; zie Vulling. Ook voor 2D-componenten wordt de 2D-vulling weergegeven indien van toepassing. |
|
RW achtergrond (enkel voor presentatielaag) |
Beschikbaar indien je een Renderworksmethode gebruikt voor Rendering vlakken. Als een renderstijl geselecteerd is, maar er zijn geen RW achtergrond instellingen beschikbaar, wordt de achtergrond bepaald door de stijl; zie Renderstijlen. |
|
Weergave achterliggende objecten |
Met deze knop open je het dialoogvenster ‘Weergave achterliggende objecten volgens klasse’. Stel hier de weergave en lijnkenmerken in voor objecten die zich onder het snijvlak bevinden en achter andere objecten verborgen liggen; zie Displaying 3D objects by class in section viewports. Deze optie is pas beschikbaar voor snedevensters op ontwerplaag wanneer de optie 2D-geprojecteerd weergeven is aangevinkt. |
|
Toon delen vóór snijvlak |
Vink deze optie aan om ook de delen van het ontwerp weer te geven die zich vóór het snijvlak bevinden. Deze optie is pas beschikbaar voor snedevensters op ontwerplaag wanneer de optie 2D-geprojecteerd weergeven is aangevinkt. |
|
Weergave objecten |
Met deze knop open je het dialoogvenster ‘Weergave objecten volgens klasse’. Stel hier de weergave en lijnkenmerken in voor objecten die zich vóór het snijvlak bevinden; zie Displaying 3D objects by class in section viewports. Deze optie is pas beschikbaar voor snedevensters op ontwerplaag wanneer de optie 2D-geprojecteerd weergeven is aangevinkt. |
|
Weergave achterliggende objecten |
Met deze knop open je het dialoogvenster ‘Weergave achterliggende objecten volgens klasse’. Stel hier de weergave en lijnkenmerken in voor objecten die zich vóór het snijvlak bevinden en achter andere objecten verborgen liggen; zie Displaying 3D objects by class in section viewports. Deze optie is pas beschikbaar voor snedevensters op ontwerplaag wanneer de optie 2D-geprojecteerd weergeven is aangevinkt. |
|
Projectie (enkel voor presentatielaag) |
Selecteer een projectiemethode voor het zichtvenster (zie Projectie) |
|
Type perspectief (enkel voor presentatielaag) |
Selecteer een type perspectief of kies ‘Op maat’ en geef de gewenste Brandp. afstand (brandpuntafstand) op. |
|
Snedevenster geavanceerd |
Klik op deze knop om de geavanceerde instellingen van het snedevenster te bepalen, waaronder de reikwijdte en de kenmerken van de doorsnede; zie Geavanceerde instellingen - snedevenster |
|
Niveaubematingen (Vectorworks Architectuur of Landschap vereist) |
Beschikbaar als het project ingesteld is met bouwlagen. Klik op deze knop om het dialoogvenster Niveaubematingen te openen en Aanzicht bematingen te koppelen aan bouwlaagonderdelen (zie Niveaubematingen en bouwlagen). |
|
Instellingen snede/zichtaanduiding |
|
|
Stijl snede/zichtaanduiding: |
Selecteer een stijl via de Hulpbronnenkiezer. |
|
Automatisch invullen |
Indien aangevinkt, worden de Titel presentatietekening, Nummer presentatietekening en Nummer presentatielaag van het snedevenster automatisch in de snede/zichtaanduiding overgenomen. Vink deze optie uit om de informatie manueel aan te passen. |
|
Titel presentatietekening / Nummer presentatietekening / Nummer presentatielaag |
Dit is informatie over het zichtvenster waar de snijlijn naar verwijst. Als Automatisch invullen uitgevinkt is, dien je de informatie manueel op te geven. Anders wordt automatisch de informatie van het gekoppelde zichtvenster overgenomen. |
Het nieuwe verticale snedevenster wordt weergegeven.
Een zichtvenster op een ontwerplaag wordt standaard in 2D/Planaanzicht gezet, maar het is mogelijk om het aanzicht te veranderen. Je kan een snedevenster op een ontwerplaag bijsnijden, maar hier geen aantekeningen aan toevoegen.
Creëer eventueel een objectstijl op basis van het object (zie Objectstijlen op maat zonder catalogusopties).

Niet gevonden wat je zocht? Vraag het aan onze virtuele assistent Dex. ![]()
