Tworzenie okna przekroju pionowego
|
Polecenie |
Lokalizacja |
|
Utwórz okno przekroju |
Widok Menu kontekstowe |
Okna przekroju pionowego pozwalają uzyskać przekrój poprzeczny/podłużny modelu (prostopadły do poziomu), który można dostosować na kilka różnych sposobów, opisanych w zagadnieniu Tworzenie okien przekroju.
Aby utworzyć okno przekroju pionowego:
Wykonaj następujące czynności przygotowawcze:
Aby utworzyć przekrój z aktywnej warstwy projektowej, ustaw ją w rzucie 2D/głównym. W tym celu kliknij Widok > Widoki standardowe > Rzut 2D/Główny.
Aby utworzyć przekrój z istniejącego okna widoku, zaznacz okno widoku (inne niż okno przekroju) w jednym z następujących widoków: Z góry, Z dołu, Z lewej, Z prawej, Z przodu lub Z tyłu lub aktywuj tryb edycji adnotacji pionowego okna widoku (innego niż okno przekroju) lub okna przekroju poziomego.
Aby utworzyć przekrój pionowy istniejącej bryły kadrującej, użyj narzędzia Zaznaczenie, aby wskazać pionową powierzchnię bryły kadrującej, wyznaczającej początek przekroju. (Zob. Edycja modelu za pomocą bryły kadrującej.)
Postępuj zgodnie z jedną z opisanych poniżej metod pracy:
Zaznacz odpowiednie polecenie.
Utwórz linię przekroju za pomocą narzędzia Znacznik przekroju-elewacji, a następnie zaznacz odpowiednie polecenie albo kliknij przycisk Utwórz okno przekroju w palecie Info. (Zob. Tworzenie znaczników przekroju-elewacji.) Przejdź dalej do kroku nr 4.
Skopiuj istniejącą linię przekroju z innego okna widoku. Skopiowana linia zachowa wszystkie ustawienia i atrybuty oryginalnej linii przekroju, z wyjątkiem powiązania z oknem widoku. Wstaw linię w wybrane miejsce, a następnie zaznacz odpowiednie polecenie albo kliknij przycisk Utwórz okno przekroju w palecie Info. Przejdź dalej do kroku nr 4.
Zaznacz bryłę kadrującą i kliknij powierzchnię, która ma posłużyć za płaszczyznę przekroju, prawym przyciskiem myszy. Wybierz polecenie z menu kontekstowego. Znacznik przekroju-elewacji zostanie utworzony automatycznie; przejdź dalej do kroku 4.
Jeśli nie wykorzystujesz istniejącego znacznika widoku-elewacji ani bryły kadrującej do utworzenia płaszczyzny przekroju, samodzielnie narysuj linię przekroju w warstwie projektowej lub oknie widoku.
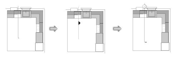
Kliknij w obszarze rysunku i przeciągnij myszą, aby rozpocząć rysowanie linii przekroju. Kliknij ponownie, aby wyznaczyć koniec linii przekroju, a następnie kliknij, aby zdefiniować orientację okna przekroju (oznaczoną czarną strzałką). Kliknij dwukrotnie, aby zakończyć tworzenie linii przekroju.
Aby narysować łamaną linię przekroju, kliknij w obszarze rysunku w celu utworzenia pierwszego segmentu linii. Określ orientację okna przekroju (ta część rysunku zostanie wyświetlona w oknie przekroju). Kliknij i przeciągnij myszą, aby narysować kolejne segmenty linii; łamane linie przekroju mogą przebiegać albo równolegle, albo prostopadle względem siebie (pod kątem 90°). Kliknij dwukrotnie, aby zakończyć tworzenie łamanej linii przekroju.
Na ekranie pojawi się okno dialogowe Okno przekroju. Dostępność parametrów w tym oknie zależy od tego, czy okno widoku zostało utworzone w warstwie projektowej czy arkuszu prezentacji. Ustawienia Według wystąpienia można później dostosować w palecie Info lub oknie ustawień. Aby przejść do okna ustawień, kliknij okno widoku prawym przyciskiem myszy i wybierz z menu kontekstowego opcję Ustawienia.
Skala okna przekroju w warstwie projektowej zostanie przejęta z warstwy, w której utworzono okno przekroju. Także tryb renderowania zastosowany do bieżącej warstwy zostanie użyty do renderowania okna przekroju w warstwie projektowej.
Kliknij, aby pokazać/ukryć parametry.Kliknij, aby pokazać/ukryć parametry.
|
Parametr |
Opis |
|
Nazwa stylu |
Kliknij dwukrotnie wybrany zasób w Próbniku zasobów, aby go aktywować, lub kliknij opcję Brak stylu. Jeśli usuniesz styl, bieżące wartości obiektu zostaną zachowane, ale status wszystkich parametrów zostanie zmieniony na Wg wystąpienia, co umożliwi ich edycję. |
|
Według stylu/Według wystąpienia |
Odpowiednia ikona wskazuje, czy parametr jest zdefiniowany przez styl okna widoku i ma stałą wartość, czy też przez wystąpienie i można go edytować. Styl może składać się z kombinacji parametrów obu typów, aby zapewnić równowagę między spójnością a elastycznością. Niektóre parametry muszą być zdefiniowane Według wystąpienia i w związku z tym nie podlegają tym ustawieniom. Status parametrów (Według stylu/Według wystąpienia) definiowany jest w stylu i nie można go zmieniać w tym oknie dialogowym.
Aby dowiedzieć się, jak edytować styl, zob. Tworzenie stylów okien widoku i ich edycja. Uwaga! Edycja stylu spowoduje modyfikację wszystkich okien widoku istniejących na rysunku i korzystających z tego stylu. |
|
Ogólne |
|
|
Jako nazwy użyj numeru rysunku/numeru arkusza prezentacji (dot. tylko arkusza prezentacji) |
Zaznacz tę opcję, aby automatycznie zdefiniować nazwę okna widoku. Nazwa ta będzie składała się z numeru rysunku oraz numeru arkusza prezentacji. Odznacz tę opcję, aby nazwę wprowadzić nazwę okna widoku samodzielnie. |
|
Nazwa okna widoku |
Jeżeli nie zaznaczysz opcji Jako nazwy użyj numeru rysunku/numeru arkusza prezentacji, nazwę okna widoku należy zdefiniować samodzielnie. |
|
Utwórz w |
Wybierz warstwę/arkusz, w której(-ym) ma zostać utworzone okno widoku lub zaznacz na liście rozwijanej opcję „Nowa(-y) warstwa projektowa/arkusz prezentacji”, aby utworzyć nową(-y) warstwę/arkusz. Jeśli dokument nie zawiera arkuszy prezentacji, a ty nie utworzysz w tym momencie nowego arkusza, po kliknięciu OK otwarte zostanie okno dialogowe, w którym zostaniesz poproszony o utworzenie nowego arkusza. |
|
Użyj metki rysunku (dot. tylko arkusza prezentacji) |
Zaznacz tę opcję, aby do adnotacji okna widoku dodać metkę rysunku. Wybierz styl z Próbnika zasobów. |
|
Numer rysunku (dot. tylko arkusza prezentacji) |
Vectorworks domyślnie wstawi kolejny wolny numer porządkowy dostępny w wybranym arkuszu prezentacji. Numer ten będzie wyświetlany w każdym znaczniki przekroju-elewacji, a także we wszystkich obiektach adnotacji znajdujących się w tym oknie widoku lub powiązanych z tym oknem widoku. Ten sam numer nie może powtarzać się we wskazanym arkuszu prezentacji. |
|
Tytuł rysunku (dot. tylko arkusza prezentacji) |
Tutaj wprowadź opisowy tytuł okna widoku. Jego długość nie może przekroczyć 63 znaków. Tytuł ten będzie wyświetlany we wszystkich adnotacjach dodawanych do tego okna widoku. Jeśli w preferencjach dokumentu włączono opcję Automatyczna koordynacja adnotacji, każda zmiana w tym polu zostanie automatycznie wprowadzona w polu metki rysunku tego okna widoku i odwrotnie. |
|
Warstwy |
Wskaż warstwy projektowe, które będą widoczne w oknie widoku. Zob. Kolumny z opcjami widoczności. Gdy edytujesz ustawienia okna widoku lub stylu okna widoku, możesz zmienić określone ustawienia widoczności warstw projektowych zawartych w oknie widoku; zob. Zmiana właściwości warstw w oknach widoku (w arkuszu prezentacji lub warstwie projektowej). |
|
Klasy |
Wskaż klasy, które będą widoczne w oknie widoku. Zob. Kolumny z opcjami widoczności. Gdy edytujesz ustawienia okna widoku lub stylu okna widoku, możesz także dostosować niektóre z właściwości klas w oknie widoku, w tym ustawienia adnotacji i obiektów kadrujących. Poza tym można także nadpisać ustawienia widoczności klas dla zaznaczonego okna widoku (zob. Zmiana właściwości klas w oknach widoku (w arkuszu prezentacji lub warstwie projektowej)). |
|
Zarządzanie fazami |
Dostępne tylko wtedy, gdy w pliku występuje więcej niż jedna faza. |
|
Faza |
Określ fazę, która ma być wyświetlana w oknie widoku. Wybrana faza staje się fazą aktywną okna widoku. |
|
Pokaż z niskim stopniem szczegółowości |
W zależności od wybranych opcji funkcja ta wyświetla obiekty złożone z komponentów (takie jak ściany, płyty, dachy i nawierzchnie) oraz/lub symbole i obiekty parametryczne, które mają status „Istniejący” lub „Usunięty/Do rozbiórki” w aktywnej fazie, z niskim poziomem szczegółowości, niezależnie od bieżącego ustawienia poziomu szczegółowości w danym oknie widoku. |
|
Wizualizacja danych |
Zaznacz tę opcję, aby zastosować wizualizację danych do okna widoku, w celu ukrycia obiektów lub zmiany ich atrybutów na podstawie danych obiektu; zob. Wyświetlanie projektu według wybranych danych lub według atrybutów |
|
Utwórz legendę do wizualizacji danych |
Zaznacz tę opcję, aby automatycznie dodawać legendę do wizualizacji danych za każdym razem, gdy wizualizacja danych jest stosowana do okna widoku. |
|
Skala (dot. tylko arkusza prezentacji) |
Zdefiniuj skalę okna przekroju w odniesieniu do strony. Wybierz skalę z listy lub zaznacz opcję Dostosuj, a następnie zdefiniuj własną skalę w polu Skala niestandardowa 1. |
|
Stopień szczegółowości |
Zdefiniuj stopień szczegółowości symboli i obiektów parametrycznych w oknie widoku (zob. Różnicowanie stopnia szczegółowości w komponentach 2D i 3D definicji symboli i obiektów parametrycznych). Komponenty ścian, płyt i dachów wyświetlane są w „Średnim” i „Wysokim” stopniu szczegółowości. |
|
Pokaż obiekty płaskie |
Zaznacz tę opcję, aby w oknie przekroju wyświetlić obiekty płaskie (czyli obiekty w przestrzeni 3D bez zdefiniowanej wysokości Z). Jeśli widoczne obiekty płaskie znajdą się na linii przekroju, zostaną przedstawione w przekroju. |
|
Pokaż komponenty 2D |
Zaznacz tę opcję, aby wyświetlić komponenty 2D (jeśli takie występują) wszystkich symboli i obiektów parametrycznych ustawionych prostopadle do widoku (zob. Zagadnienie: Komponenty 2D do definicji symboli i obiektów parametrycznych). Jeśli obiekt nie posiada komponentu 2D w tym widoku, zostanie wyświetlony komponent 3D. Okno widoku w warstwie projektowej, dla którego zaznaczono opcję Wyświetl w odwzorowaniu 2D, zachowuje się tak samo jak okno widoku w arkuszu prezentacji. Jeśli nie zaznaczysz opcji Wyświetl w odwzorowaniu 2D, w oknie widoku zostaną wyświetlone komponenty 2D tylko w grafice w obrębie przekroju. Dotyczy to tylko okien widoku wyrenderowanych w trybie „Nie pokazuj linii ukrytych” i ustawionych w widoku 3D oraz rzucie ortogonalnym. |
|
Wyświetl w odwzorowaniu 2D (dot. tylko warstwy projektowej) |
Gdy zaznaczysz tę opcję, okno widoku będzie zawsze wyświetlane jako okno przekroju w odwzorowaniu 2D („spłaszczone”), porównywalne z oknem przekroju w arkuszu prezentacji. Odznacz tę opcję, aby okno widoku wyświetlało bieżący widok zaznaczony w warstwie projektowej. |
|
Ustawienia widoku |
|
|
Pokaż obszar obiektów za płaszczyzną cięcia |
Zaznacz tę opcję, aby wyświetlić obiekty położone za płaszczyzną cięcia; widoczne obiekty płaskie przecinane są wtedy, gdy znajdują się na linii przekroju. |
|
Renderowanie płaszczyzn/krawędzi |
„Renderowanie płaszczyzn” (tj. renderowanie tła) definiuje tryb renderowania okna widoku. Aby uzyskać złożony efekt przypominający szkic, nakładając na okno widoku dodatkową warstwę linii, zaznacz opcjonalny tryb renderowania krawędzi (tj. renderowanie pierwszego planu) (Tryb szkieletowy, Styl szkicowania, Nie pokazuj linii ukrytych i Pokaż linie ukryte - to jedyne tryby renderowania, które można zastosować do renderowania krawędzi). W niektórych trybach dostępny jest przycisk Ustawienia, umożliwiający dostosowanie parametrów renderowania. Jeśli dla trybu renderowania płaszczyzn wybrany jest styl renderowania, to on dyktuje odpowiednie ustawienia renderowania; zob. Style renderowania. W przypadku okien przekroju w warstwach projektowych renderowanie płaszczyzn definiowane jest za pomocą ustawień warstwy projektowej; Renderowanie krawędzi jest w tym wypadku dostępne tylko wtedy, gdy opcja Wyświetl w odwzorowaniu 2D jest zaznaczona. |
|
Ustawienia |
Kliknij ten przycisk, aby dostosować ustawienia trybu renderowania (opcja dostępna tylko dla niektórych trybów renderowania). Po aktywacji Trybu cieniowania lub trybu Nie pokazuj linii ukrytych z poziomu palety Info danego okna widoku dostępne są dodatkowe opcje obrazowania głębi. Aby uzyskać więcej informacji na ten temat, zob. poniższe linki: Ustawienia trybu cieniowania: Tryb cieniowania - ustawienia oraz Obrazowanie głębi w oknie widoku Ustawienia trybu Renderworks - tryb niestandardowy: Renderworks - tryb niestandardowy - ustawienia Ustawienia trybu Renderworks - tryb artystyczny: Renderworks - tryb artystyczny - ustawienia Ustawienia trybów Pokaż linie ukryte/Nie pokazuj linii ukrytych i Wielobok z cieniowaniem - tryb optymalny: Renderowanie linii - ustawienia oraz Obrazowanie głębi w oknie widoku Ustawienia trybu Styl szkicowania: Przypisywanie stylu szkicowania do okna widoku |
|
Pokaż wypełnienia 2D (dot. tylko arkusza prezentacji) |
Zaznacz tę opcję, aby w trybach Renderowania płaszczyzn: „Nie pokazuj linii ukrytych” i „Pokaż linie ukryte” wyświetlać na rysunku wypełnienia 2D widocznych obiektów płaskich poza płaszczyzną cięcia (zob. Wypełnienie). Wypełnienia 2D zostaną wyświetlone także w przypadku komponentów 2D, jeśli takie mają zastosowanie. |
|
Tło RW (dot. tylko arkusza prezentacji) |
Ta opcja jest dostępna tylko w przypadku wybrania w Renderowaniu płaszczyzn jednego z trybów Renderworks. Jeśli wybrany jest jeden ze stylów renderowania, ale żadne z opcji teł Renderworks nie są dostępne, oznacza to, że tło definiowane jest przez styl; zob. Style renderowania. |
|
Widok obiektów zakrytych |
Kliknij ten przycisk, aby otworzyć okno dialogowe „Widok obiektów zakrytych definiowany wg klasy”. Zdefiniuj sposób wyświetlania oraz atrybuty linii, które zostaną zastosowane do obiektów położonych pod płaszczyzną przekroju oraz zakrytych przez inne obiekty (zob. Widok obiektów 3D z użyciem atrybutów klasy w oknach przekroju). Opcja dostępna dla okien przekroju w warstwie projektowej tylko wtedy, gdy jednocześnie jest zaznaczona opcja Wyświetl w odwzorowaniu 2D. |
|
Pokaż obszar obiektów przed płaszczyzną cięcia |
Zaznacz tę opcję, aby wyświetlić obiekty położone przed płaszczyzną cięcia. Opcja dostępna dla okien przekroju w warstwie projektowej tylko wtedy, gdy jednocześnie jest zaznaczona opcja Wyświetl w odwzorowaniu 2D. |
|
Widok obiektów |
Kliknij ten przycisk, aby otworzyć okno dialogowe „Widok obiektów definiowany wg klasy”. Zdefiniuj sposób wyświetlania oraz atrybuty linii, które zostaną zastosowane do obiektów położonych przed płaszczyzną przekroju (zob. Widok obiektów 3D z użyciem atrybutów klasy w oknach przekroju). Opcja dostępna dla okien przekroju w warstwie projektowej tylko wtedy, gdy jednocześnie jest zaznaczona opcja Wyświetl w odwzorowaniu 2D. |
|
Widok obiektów zakrytych |
Kliknij ten przycisk, aby otworzyć okno dialogowe „Widok obiektów zakrytych definiowany wg klasy”. Zdefiniuj sposób wyświetlania oraz atrybuty linii, które zostaną zastosowane do obiektów położonych przed płaszczyzną przekroju oraz zakrytych przez inne obiekty (zob. Widok obiektów 3D z użyciem atrybutów klasy w oknach przekroju). Opcja dostępna dla okien przekroju w warstwie projektowej tylko wtedy, gdy jednocześnie jest zaznaczona opcja Wyświetl w odwzorowaniu 2D. |
|
Rzut (dot. tylko arkusza prezentacji) |
Zaznacz typ rzutowania dla okna widoku (zob. Rzut). |
|
Perspektywa (dot. tylko arkusza prezentacji) |
W przypadku rzutu perspektywicznego, wybierz typ perspektywy w danym oknie widoku lub wybierz opcję „Dostosuj” i wprowadź żądaną Odległość ogniskową. |
|
Zaawansowane |
Kliknij ten przycisk, aby zdefiniować zaawansowane ustawienia okna przekroju, w tym obszar obiektów oraz atrybuty przekroju; zob. Ustawienia zaawansowane okna przekroju |
|
Rzędne wysokościowe (wymagana wersja branżowa Vectorworks Architect lub Vectorworks Landmark) |
Opcja dostępna w przypadku projektu ze zdefiniowanymi kondygnacjami. Kliknij, aby otworzyć okno dialogowe „Rzędne wysokościowe” i powiązać w nim rzędne wysokościowe z rzędnymi kondygnacji (zob. Rzędne wysokościowe a kondygnacje). |
|
Ustawienia znacznika przekroju-elewacji |
|
|
Styl znacznika przekroju-elewacji |
Kliknij listę, aby wybrać styl z Próbnika zasobów. |
|
Uzupełnij automatycznie |
Zaznacz tę opcję, aby znacznik przekroju-elewacji automatycznie wyświetlał Numer rysunku, Tytuł rysunku i Numer arkusza prezentacji danego okna przekroju. Odznacz tę opcję, aby wprowadzić dane samodzielnie. |
|
Tytuł rysunku / Numer rysunku / Numer arkusza prezentacji |
To są informacje dotyczące okna widoku, do którego odnosi się linia przekroju. Jeśli opcja Uzupełnij automatycznie nie jest zaznaczona, wprowadź dane samodzielnie. W przeciwnym wypadku pola zostaną automatycznie uzupełnione danymi z powiązanego okno widoku. |
Na ekranie wyświetlone zostanie nowe okno przekroju pionowego.
Widok w oknie widoku umieszczonym w warstwie projektowym jest domyślnie ustawiony jako rzut 2D/główny, ale można go dowolnie zmieniać. Okno przekroju w warstwie projektowej można kadrować, jednak nie ma możliwości dodawania do niego adnotacji.
Opcjonalnie utwórz styl obiektu parametrycznego na podstawie obiektu bez przypisanego stylu (zob. Tworzenie stylów okien widoku i ich edycja).

Potrzebujesz więcej informacji? Poproś o pomoc naszego wirtualnego asystenta Dexa!
